Endstücke für Putz- und Sichtfassaden
Endstücke für Fensterbänke sind entscheidende Elemente, die sowohl die Funktionalität als auch die Ästhetik von Fassaden beeinflussen. Sie sorgen für einen sauberen Abschluss und schützen die Bausubstanz vor Witterungseinflüssen.
Putz-Endstücke:
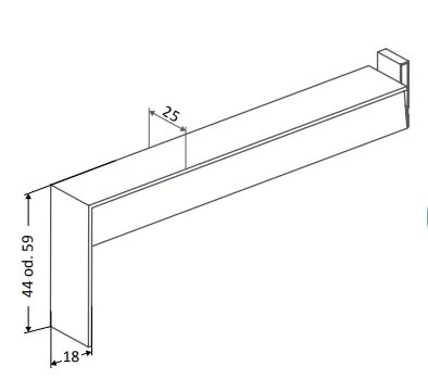
Diese Endstücke sind speziell für verputzte Fassaden konzipiert. Sie verfügen über eine Putzkante, die es ermöglicht, nach der Installation der Fensterbank den Putz bündig aufzutragen, wodurch ein harmonisches Fassadenbild entsteht. Die Putzkantenbreite variiert, gängig sind jedoch 18 mm. Es ist wichtig zu beachten, dass diese Endstücke in der Regel keinen Dehnungsausgleich bieten. Daher wird empfohlen, eine zweite Dichtebene zu integrieren, um optimale Schlagregendichtheit zu gewährleisten.
Sicht-Endstücke:
Auch bekannt als Klinker-Endstücke, sind diese für Fassaden ohne Putz vorgesehen, wie beispielsweise Klinker- oder Sichtbetonfassaden. Sie bieten einen geraden, sichtbaren Abschluss der Fensterbank und tragen zu einem klaren, architektonischen Erscheinungsbild bei. Ähnlich wie bei den Putz-Endstücken ist hier oft kein Dehnungsausgleich integriert, weshalb auch hier die Anbringung einer zweiten Dichtebene empfohlen wird, um die Schlagregendichtheit sicherzustellen.
Material und Ausführungen:
Sowohl Putz- als auch Sicht-Endstücke bestehen häufig aus hochwertigem Aluminium, das für seine Langlebigkeit und Witterungsbeständigkeit bekannt ist. Sie sind in verschiedenen Ausladungen erhältlich, typischerweise von 50 mm bis 400 mm, um unterschiedlichen baulichen Anforderungen gerecht zu werden. Farblich stehen sie in Standardtönen wie Alu Natur eloxiert oder RAL 9016 (weiß pulverbeschichtet) zur Verfügung, sodass sie sich nahtlos in das Fassadendesign einfügen.
Montagehinweis:
Bei der Installation ist es essenziell, die Endstücke passgenau zur Fensterbank und zur Fassadenart auszuwählen. Besonders bei fehlendem Dehnungsausgleich sollte auf eine fachgerechte Abdichtung geachtet werden, um langfristigen Schutz vor Feuchtigkeit zu gewährleisten.
Durch die Wahl der passenden Endstücke für Ihre Fassade stellen Sie sicher, dass Ihre Fensterbänke nicht nur funktional, sondern auch optisch überzeugen.

Aluminium Endkappenpaar für Putz• Aluminium-Endstück für Putzfassaden mit 18 mm breiter Putzkante• Ausklinkungen für Rollladenführungsschienen oder Sonnenschutzsysteme am Endstück können mühelos durchgeführt werden• Kein Dehnungsausgleich• Zweite Dichtebene wird empfohlen Aluminium-Endstück ohne Dehnungsausgleich für Putzfassaden mit 18 mm breiter Putzkante.Da es sich um ein nicht schlagregendichtes Endstück handelt, wird die Anbringung einer zweiten Dichtebene empfohlen.

Aluminium Endkappenpaar für Klinker und SIcht• Aluminium-Endstück für Klinker-und Sichtfassaden ohne Putzkante• Ausklinkungen für Rollladenführungsschienen oder Sonnenschutzsysteme am Endstück können mühelos durchgeführt werden• Kein Dehnungsausgleich• Zweite Dichtebene wird empfohlen

Aluminium Endkappenpaar für Putz-RAL oder RAL DB 703 gepulvert• Aluminium-Endstück für Putzfassaden mit 18 mm breiter Putzkante• Ausklinkungen für Rollladenführungsschienen oder Sonnenschutzsysteme am Endstück können mühelos durchgeführt werden• Kein Dehnungsausgleich• Zweite Dichtebene wird empfohlen Aluminium-Endstück ohne Dehnungsausgleich für Putzfassaden mit 18 mm breiter Putzkante.Da es sich um ein nicht schlagregendichtes Endstück handelt, wird die Anbringung einer zweiten Dichtebene empfohlen.

Aluminium Endkappenpaar für Sicht-RAL gepulvert• Aluminium-Endstück für Sichtfassaden ohne Putzkante• Kein Dehnungsausgleich• Zweite Dichtebene wird empfohlen Da es sich um ein nicht schlagregendichtes Endstück handelt, wird die Anbringung einer zweiten Dichtebene empfohlen.

RBB Aluminium Endkappenpaar für Putz-RAL oder RAL DB 703 gepulvert • Aluminium-Gleitendstück für den Einsatz in WDVS- und Putzfassaden • ift-Rosenheim geprüft: schlagregendicht bis 1.950 Pa • Integrierter Dehnungsausgleich - verhindert Putzrisse • Ausklinkungen für Rollladenführungen möglich • Putzkantenbreite: 22 mm • Verarbeiterfreundliche Montage

RBB Aluminium WDVS Endkappenpaar für Sicht- / Holzfassaden-RAL oder RAL DB 703 gepulvert • Aluminium-Gleitendstück für den Einsatz in Sichtfassaden • ift-Rosenheim geprüft: schlagregendicht bis 1.950 Pa • Integrierter Dehnungsausgleich - verhindert Putzrisse • Ausklinkungen für Rollladenführungen möglich • Verarbeiterfreundliche Montage

Aluminium-Gleitendstück für den Einsatz in WDVS- und Putzfassaden• Integrierter Dehnungsausgleich verhindert Putzrisse• ift-Rosenheim geprüft: Schlagregendicht bis 1.950 Pa• Putzkantenbreite: 22 mm• Ausladungen bis 600 mm• Ausklinkungen für Rollladenführungen möglich• In allen Eloxal-Oberflächen oder Pulverbeschichtungen lieferbar• Verarbeiterfreundliche Montage WDVS-Endstücke für FensterbänkeWDVS-Endstücke für Fensterbänke sind essenzielle Komponenten in Wärmedämmverbundsystemen (WDVS), die einen schlagregendichten und ästhetisch ansprechenden Abschluss von Fensterbänken gewährleisten. Sie absorbieren thermisch bedingte Längenänderungen der Aluminium-Fensterbank und verhindern dadurch effektiv Putzrisse.Hauptmerkmale:Dehnungsausgleich: Integrierte Dichtschuhe aus EPDM nehmen Bewegungen der Fensterbank auf und gleichen sie aus, was die Bildung von Putzrissen verhindert.Schlagregendichtheit: Geprüft bis zu 1.950 Pa, bieten sie zuverlässigen Schutz vor eindringendem Wasser.Einfache Montage: Die Endstücke sind verarbeiterfreundlich konzipiert und können problemlos in WDVS- und Putzfassaden integriert werden.Vielseitige Ausführungen: Erhältlich in verschiedenen Ausladungen, Tropfkantenhöhen und Farben, passend zu unterschiedlichen Fensterbanktypen und Fassadengestaltungen.Vorteile:Langlebigkeit: Hochwertige Materialien wie Aluminium und EPDM gewährleisten eine lange Lebensdauer und Beständigkeit gegen Witterungseinflüsse.Ästhetik: Durch die Auswahl an Farben und Oberflächenbeschichtungen fügen sich die Endstücke harmonisch in das Gesamtbild der Fassade ein.Kompatibilität: Geeignet für Neubauten, Modernisierungen und insbesondere für Wärmedämmverbundsysteme, bieten sie flexible Einsatzmöglichkeiten.Investieren Sie in WDVS-Endstücke für Fensterbänke, um die Integrität Ihrer Fassade zu schützen und gleichzeitig eine ansprechende Optik zu gewährleisten.

WDVS Aluminium Endkappenpaar für Klinker oder Sicht • Das Original! Montieren.Fertig.Los!• Aluminium-Gleitendstück für den Einsatz in Klinker- und Sichtfassaden• Integrierter Dehnungsausgleich• ift-Rosenheim geprüft: Schlagregendicht bis 1.950 Pa• Schmale Designkante• Ausladungen bis 600 mm• In allen Eloxal-Oberflächen oder Pulverbeschichtungen lieferbar• Verarbeiterfreundliche Montage RAG² K – Das Original! setzt die Maßstäbe!Montieren.Fertig.Los!Aluminium-Gleitendstück mit EPDM Dichtschuh für den Einsatz in Klinker- und Sichtfassaden zur Erstellung von dauerhaft schlagregendichten Fensterbankanschlüssen.Der innenliegende EPDM Dichtschuh nimmt die Kräfte, welche durch die thermisch bedingten Bewegungen der Aluminium-Außenfensterbank entstehen, in seiner Dehnungszone auf und gleicht diese aus.Aufgrund seiner Konstruktionsweise ist das RAG² K sehr verarbeiterfreundlich und vielseitig einsetzbar.


